Penthousewohnung - Otto-Pexa-Straße 6b

Jetzt Anfragen

€587.000

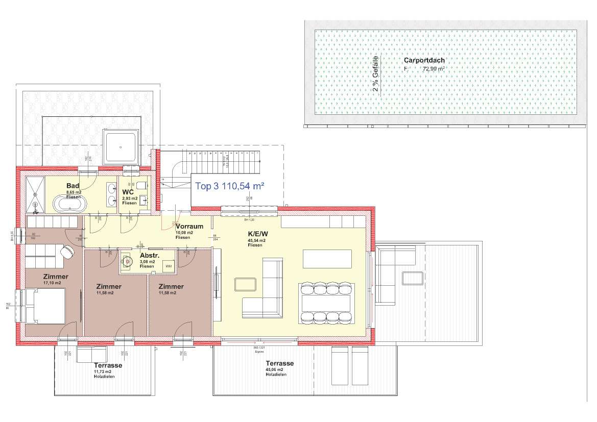
Die Plan und Massivbau präsentiert eine moderne Penthouse-Wohnung in 8501 Lieboch, Otto-Pexa-Straße 6b (TOP 3) mit rund 110 m² Wohnfläche sowie einer großzügigen Terrasse/Dachterrasse mit Ost-/West-Ausrichtung.

Die Wohnung wird vollständig schlüsselfertig übergeben, inklusive hochwertiger Ausstattung gemäß Bau- und Ausstattungsbeschreibung. Sämtliche Außenanlagen sind ebenfalls im Kaufpreis enthalten.

Die hochwertige Ziegelmassivbauweise in Kombination mit Erdwärmeheizung, Fußbodenheizung, Deckenkühlung mittels Betonkernaktivierung sowie einer Photovoltaikanlage (ca. 8,1 kWp) mit Batteriespeicher (9,6 kW) sorgt für modernen Wohnkomfort und hohe Energieeffizienz (HWB ca. 37,8 kWh/m²a, Energieklasse A++).

Mit 3 Zimmern, lichtdurchfluteten Räumen und klarem, modernem Design überzeugt diese Penthouse-Einheit durch ein durchdachtes Raumkonzept und eine ausgezeichnete Verkehrsanbindung. Der Zugang erfolgt aktuell nicht barrierefrei, ein entsprechender Umbau (z. B. Treppenlift) wäre jedoch technisch möglich.

Ein Zuhause, das Qualität, Stil und Nachhaltigkeit perfekt vereint.

BAUBEGINN: 21.08.2025
Ziegelmassivbauweise; Fussbodenheizung mit hochwertiger Grundausstattung; Photovoltaikanlage 9,0 kW Peak 40m²; Batteriespeicher 9,6 kW; Betonkernaktivierung - Deckenkühlung; Tiefenbohrung - Geothermie; Mitgestaltungsmöglichkeit; nun inkl. Großformat Fliesen 60/60; inkl. Smarthome Sonnenschutzsteuerung.
Die Übernahme der nahezu Nullenergie Immobilie ist mit 16.06.2026 geplant. Dadurch bekommen Sie eine Grundbuch Eintragungsgebührenbefreiung, und im Falle einer Finanzierung auch zu einer Pfandurkunden Eintragungsbefreiung. Diese Befreiungen laufen mit Jahreshälfte 2026 aus! Verfügbarkeit ab 16.06.2026. Jetzt mit 50% Küchen-Gutschein im Wert von € 7.500,00
Haben Sie Interesse
an dieser Immobilie?
Vielen Dank! Deine Nachricht wurde gesendet.
Deine Nachricht konnte nicht gesendet werden. Bitte behebe die Fehler und versuche es erneut.
Buy Now
Product 1 Title

Sample text. Lorem ipsum dolor sit amet, consectetur adipiscing elit nullam nunc justo sagittis suscipit ultrices.

Quantity
$20.00
$17.00